DB中国旗舰官方网站生产网板式阶梯格栅,砂水分离器,PAM加药装置,产品质量好 |
|
|
|
 |
| |
DB中国旗舰官方网站
史经理 15906151243
邵经理 15301530861
电话:0510-87830610
传真:0510-87831340
网址:https://www.daxue-sheng.com
邮箱:hopehb@126.com
地址:江苏省宜兴市高塍镇塍文路18号 |
|
| |
|
|
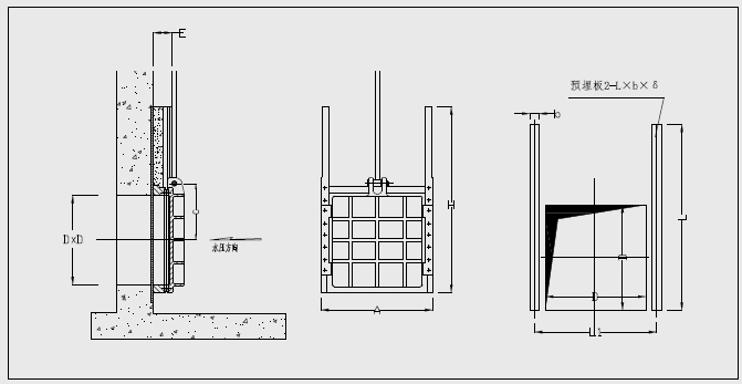
MZF型明杆式铸铁镶铜方闸门
|
|
|
用途: |
|
|
|
常用于给水、排水、防汛等水利工程
|
|
|
|
结构与特点: |
|
|
|
本设备主要由门框、闸板、密封圈及可调式楔形压块等部件组成。闸门久用磨损后,其密封面可通过楔形压块的调整来保证正常工作。具有结构合理坚固、耐磨耐腐蚀性强、性能可靠;安装、调试、使用、维护方便等特点。
|
|
|
|
主要技术参数: |
|
|
|
1、闸门应按图示位置安装、闸板设于迎水面;
2、闸板压向门框允许大压力0.1MPa;
3、闸板压离门框允许大压力0.02MPa;
4、密封工作部位渗漏量不大于1.25L/min m。
|
|
|
|
外形示意图及安装尺寸: |
|
|
|
|
|
|
|
|
|
|
|
型号规格
|
口径
|
外 形 及 安 装 尺 寸
|
|
D×D
|
A
|
b
|
c
|
E
|
H
|
L
|
L1
|
δ
|
|
MZF-300
|
300×300
|
456
|
150
|
200
|
83
|
580
|
580
|
456
|
12
|
|
MZF-400
|
400×400
|
556
|
150
|
250
|
83
|
680
|
680
|
556
|
12
|
|
MZF-500
|
500×500
|
656
|
150
|
310
|
83
|
780
|
780
|
656
|
12
|
|
MZF-600
|
600×600
|
790
|
150
|
360
|
123
|
900
|
900
|
790
|
12
|
|
MZF-700
|
700×700
|
940
|
150
|
420
|
135
|
1000
|
1000
|
940
|
12
|
|
MZF-800
|
800×800
|
1010
|
150
|
470
|
150
|
1200
|
1200
|
1010
|
12
|
|
MZF-1000
|
1000×1000
|
1210
|
150
|
580
|
163
|
1700
|
1700
|
1210
|
12
|
|
|
|
|
|
|
|
|
型号规格
|
口径
|
外 形 及 安 装 尺 寸
|
|
D×D
|
A
|
b
|
c
|
E
|
H
|
L
|
L1
|
δ
|
|
MZF-1200
|
1200×1200
|
1430
|
150
|
690
|
174
|
2000
|
2000
|
1430
|
12
|
|
MZF-1400
|
1400×1400
|
1630
|
150
|
800
|
174
|
2500
|
2500
|
1630
|
12
|
|
MZF-1600
|
1600×1600
|
1850
|
150
|
900
|
204
|
2800
|
2800
|
1850
|
12
|
|
MZF-1800
|
1800×1800
|
2050
|
150
|
1000
|
220
|
3200
|
3200
|
2050
|
12
|
|
MZF-2000
|
2000×2000
|
2270
|
150
|
1110
|
254
|
3700
|
3700
|
2270
|
12
|
|
MZF-2200
|
2200×2200
|
2480
|
150
|
1210
|
254
|
4100
|
4100
|
2480
|
12
|
|
MZF-2400
|
2400×2400
|
2660
|
150
|
1315
|
260
|
4500
|
4500
|
2660
|
12
|
|
|
|
|
|
|
|
|
|
|
|
|
型号规格
|
口径
|
外 形 及 安 装 尺 寸
|
|
D×D
|
A
|
b
|
c
|
E
|
H
|
L
|
L1
|
L2
|
δ
|
|
MZF-2600
|
2600×2600
|
2880
|
200
|
1410
|
280
|
4800
|
4800
|
2880
|
2600
|
12
|
|
MZF-2800
|
2800×2800
|
3080
|
200
|
1515
|
320
|
5200
|
5200
|
3080
|
2800
|
12
|
|
MZF-3000
|
3000×3000
|
3310
|
200
|
1620
|
320
|
5600
|
5600
|
3310
|
3000
|
12
|
|
MZF-3500
|
3500×3500
|
3820
|
200
|
1880
|
320
|
6500
|
6500
|
3820
|
3500
|
12
|
|
MZF-4000
|
4000×4000
|
4330
|
200
|
2130
|
360
|
7500
|
7500
|
4330
|
4000
|
12
|
|
MZF-4500
|
4500×4500
|
4830
|
200
|
2380
|
360
|
8500
|
8500
|
4830
|
4500
|
12
|
|
MZF-5000
|
5000×5000
|
5350
|
200
|
2650
|
360
|
9500
|
9500
|
5350
|
5000
|
12
|
|
|
|
|
|
|
|
|
|